Cuando nuestros hijos pasan a ser pequeñas personitas independientes y dejan atrás la fase de bebés, es cuando necesitan tener su propio espacio, su lugar propio dónde dormir , jugar y estudiar.
Pero sin olvidar que debe ser un espacio para niños. En ésta etapa, entre los 5 y 15 años aproximadamente, deberíamos respetar sus gustos y darles el toque infantil que su imaginación y creatividad en desarrollo requieren.
En el caso del pequeño Alvaro, sus papás tenían la suerte de disponer de una habitación auxiliar, a la que hasta el momento no daban un uso concreto, mas que de almacenamiento:
Partimos de la idea inicial del azul y rojo, colores que encantaban a nuestro pequeño cliente, y después de barajar diversas opciones dimos con la colección Arc-en-Ciel de CASADECO.
La serie dedicada a los indios, con su totem, sus tejidos de plumitas, sus tippis y su gama cromática, cuadraban a la perfección con el estilo que buscábamos. A partir de su colorido coordinamos los tonos de mobiliario que diseñamos a medida con JJP, el colorido del resto de paredes y los coordinados textiles, confeccionando, fundas de edredón, almohadas, cojines y el estor.
Os mostramos unas imágenes del proceso.
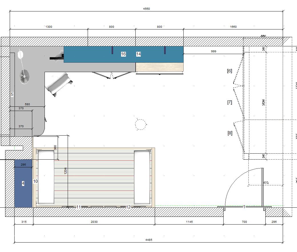
El hueco del armario empotrado se aprovechó con un armario a medida en tonos más neutros, arena y acero, para que coordinase sin condicionar demasiado el día que el dormitorio infantil tenga que hacerse mayor …
El mobiliario se compone de un arcón especial a medida para salvar el pilar del cabecero, una cama nido y un escritorio que se adapta al hueco bajo ventana. Puertas y cajones bajo la estantería, y un buk con ruedas, otorgan al dormitorio toda la utilidad necesaria.
Proyecto diseñado para Alvaro:
Proceso de la instalación y resultado:
Los detalles de las letras personalizadas con su nombre y los textiles ponen la nota original y única en la habitación de Álvaro.

